千亿球友会(中国)官方网站是致力于打造绿色办公室装修,专注办公室装修设计的济南装修公司

济南办公室装修设计-济南装修公司-山东鲁工装饰设计有限公司

全国统一服务热线
0531-58763069



大家都在搜: 办公室装修 展厅装修 幼儿园装修 店铺装修 餐饮装修

列表页banner图
山东东图服装设计公司-600平办公室装修
文章作者:山东鲁工装饰 上传更新:2020/08/20

项目名称:山东东图服装设计公司

施工面积:600m²(包含办公区+展厅)
设计+施工方:千亿球友会(中国)官方网站

前厅

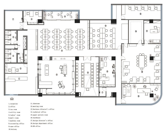
平面图


开放办公区


办公区2


茶水间


会议室


洽谈会客区


老总办公室


展厅设计


展示区


展示区2

装修报价咨询
免费热线:
0531-58763069

电话:0531-58763069